☰
MyCondoPlans
Plans
Listings
Log in
Buy Floor Plan
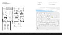
Colonnade - Unit #527 53rd Ave N
Pinellas, FL
Price: $9.95
Billing Information
Cardholder Name:
Card Number:
Expires:
Month
01
02
03
04
05
06
07
08
09
10
11
12
/
Year
2026
2027
2028
2029
2030
2031
2032
2033
2034
2035
2036
CVV/CVD:
Email Address:
Confirm Email:
Enter Captcha: