Listing Information

MLS Number: TB8329334
Status: ACTIVE
Unit Number: 106
Building Name: WINSTON PARK NORTHEAST
Building Address: 4920 LOCUST STREET NE, ST PETERSBURG, Pinellas, FL 33703
Unit Size: 930 sq ft
Bedrooms: 1
Full Bathrooms: 1
Half Bathrooms: 1
Parking:
View:
List Price: $125,000 ($134 PPSF)
Valuated Price: $134,000 ($144 PPSF)
MLS Photo 1MLS Photo 2MLS Photo 3MLS Photo 4MLS Photo 5MLS Photo 6MLS Photo 7MLS Photo 8MLS Photo 9MLS Photo 10MLS Photo 11MLS Photo 12MLS Photo 13MLS Photo 14MLS Photo 15MLS Photo 16MLS Photo 17MLS Photo 18MLS Photo 19MLS Photo 20MLS Photo 21MLS Photo 22MLS Photo 23MLS Photo 24MLS Photo 25MLS Photo 26

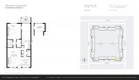
Floor Plan

Floor Plan

Building Information

Winston Park Northeast 500

Number of units: 102
Building inventory for rent: 2 (2%)
Building inventory for sale: 12 (12%)
Number of sales over the last 12 months: 4
Number of sales over the last 6 months: 1
Number of sales over the last 3 months: 0

Building Association

Winston Park Northeast
5085 1st St NE,
St. Petersburg, FL 33703
Phone: +1 727-528-7019

Link: https://

Recent Sales

Unit # Size Closing Date Sale Price PPSF
106 930 sq ft Aug 2025 $100,000 $108
232 930 sq ft Mar 2025 $168,000 $181
317 1,035 sq ft Jan 2025 $225,000 $217
311 1,035 sq ft Dec 2024 $148,000 $143

Market Information

Building vs City

Winston Park Northeast 500: $145/sq. ft.
St Petersburg: $376/sq. ft.

City vs County

St Petersburg: $376/sq. ft.
Pinellas: $387/sq. ft.

Winston Park Northeast 500 inventory for sale: 11%
St Petersburg inventory for sale: 9%
Pinellas inventory for sale: 8%

Avg. time to close over last 12 months

Winston Park Northeast 500: 141 days
St Petersburg: 95 days
Pinellas: 100 days

Building Photo

Aerial photo
Built in 1979 - 102 units - 3 floors

Contact an Agent

Name:
Email:
Phone:
Additional
Comments:

I wish to be contacted:
Anytime
Morning Noon
Afternoon Evening

Listing TB8329334 data provided by BeachesMLS.